Violenstraat 44

1214 CM HILVERSUM

€ 460.000,- k.k.

Te koop
Plan bezichtiging
Verkocht o.v.
Verkocht
101 m2
3 kamers
1910
84 m2
2 slaapkamers
F

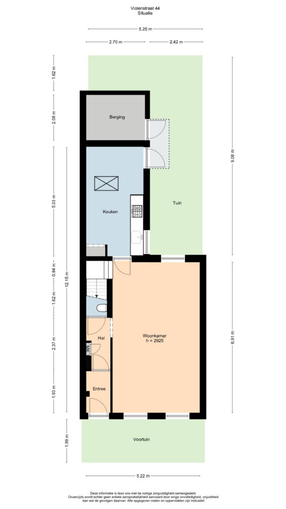
Sfeervolle middenwoning in de geliefde Bloemenbuurt met zonnige tuin op het zuidwesten In de populaire en kindvriendelijke Bloemenbuurt, op korte loopafstand van de winkels en boetieks van ‘De Gijsbrecht’, ligt deze karakteristieke middenwoning. De ligging is centraal: nabij het stadspark ‘Oude Haven’, diverse scholen, sportvoorzieningen en uitvalswegen richting Utrecht en Amsterdam. Ook het centrum van Hilversum, met uiteenlopende winkels, horeca en bioscopen, bevindt zich op circa vijf minuten wandelen. Daarnaast zijn de Loosdrechtse Plassen snel bereikbaar. Indeling Begane grond Entree met toilet. De woning beschikt over een ruime en lichte woonkamer. Aan de achterzijde bevindt zich de moderne keuken, voorzien van een SMEG
inbouwapparatuur, grote koel-vriescombinatie en vaatwasser. Vanuit de keuken is er toegang tot de stahoge kelder, geschikt als extra bergruimte. De achtertuin, gelegen op het zuidwesten, beschikt over een aangebouwde stenen schuur met elektra en een achterom. Eerste verdieping Overloop met toegang tot twee slaapkamers van goed formaat en een groot dakterras. De moderne badkamer is uitgerust met een douche, wastafelmeubel en tweede toilet. Bijzonderheden • Gelegen in de gewilde Bloemenbuurt • Moderne keuken • Twee slaapkamers van goed formaat • Moderne badkamer • Op loopafstand van het centrum van Hilversum • Nabij uitvalswegen richting Amsterdam en Utrecht • Dichtbij natuur en water, waaronder de Loosdrechtse Plassen
Verder lezen

Overdracht

Vraagprijs € 460.000,- k.k.
Vraagprijs per m2 € 5476,-
Aangeboden sinds Tijdperiode niet beschikbaar
Status Beschikbaar
Aanvaarding In overleg

Bouw

Soort woonhuis Eengezinswoning
Soort bouw Bestaande bouw
Bouwjaar 1910

Oppervlakte en inhoud

Indeling

Energie

Kadastrale grens

Buitenruimte

Parkeergelegenheid

Deze woning bezichtigen

Laat uw gegevens achter en wij nemen contact met u op voor het plannen van een bezichtiging

Google maps

Stand van de zon

Je eerste woning?

Wanneer u uw huis gaat verkopen is het wel zo fijn om met een partij in zee te gaan die uw woning optimaal onder de aandacht van potentiële kopers brengt. Een partij die u adviseert over een reële vraagprijs, die de bezichtigingen begeleidt en voor u de onderhandelingen voert.

Bij ID Makelaars houden we van een directe, recht-door-zee manier van communiceren. Uw woning brengen wij uitgebreid onder de aandacht van potentieel geïnteresseerden.

Te koop

Violenstraat 44

Hilversum
84 m2
101 m2
3
2

Violenstraat 44

€ 460.000,- k.k.
Te koop

Neuweg 29-8

Hilversum
59 m2
1
1

Neuweg 29-8

€ 325.000,- k.k.
Te koop

Karel Doormanlaan 92

Hilversum
78 m2
3
2

Karel Doormanlaan 92

€ 330.000,- k.k.
Te koop

Biezenmeent 56

Hilversum
115 m2
170 m2
6
5

Biezenmeent 56

€ 525.000,- k.k.
Te koop

Kruissteeg 6F

Hilversum
52 m2
3
2

Kruissteeg 6F

€ 285.000,- k.k.

Plan een bezichtiging
of stel een vraag

Zou u deze woning willen bezichtigingen of heeft u vraag? Laat uw gegevens achter via dit formulier en wij nemen zo snel mogelijk contact met u op.

Neem contact met ons op!