Kruissteeg 6F

1211 DE HILVERSUM

€ 285.000,- k.k.

Te koop
Plan bezichtiging
Verkocht o.v.
Verkocht
3 kamers
1987
52 m2
2 slaapkamers
C

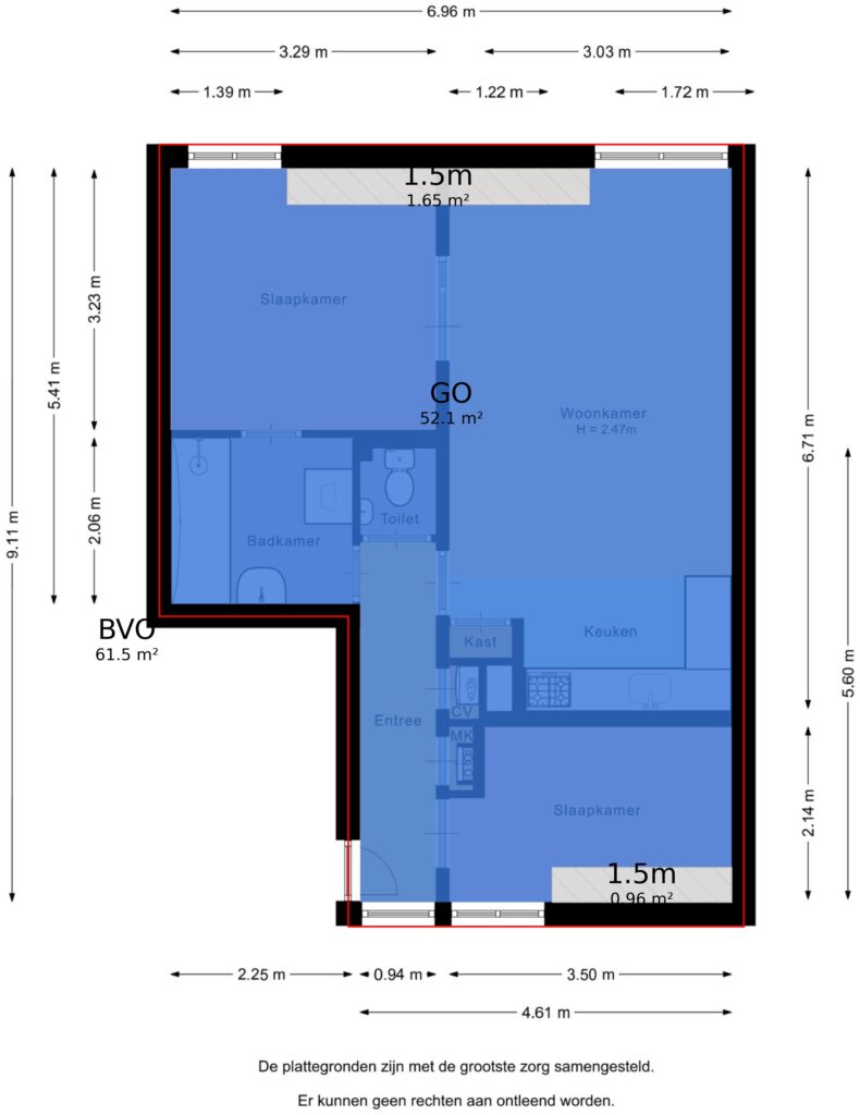
3-kamer appartement gelegen op de bovenste woonlaag met eigen parkeerplek in het bruisende centrum van Hilversum op loopafstand van het NS station! Door de perfecte ligging hoeft u alleen de deur uit te lopen en u staat middenin het bruisende centrum van Hilversum met al haar verschillende winkel- en horeca aanbod. Ook voorzieningen als (internationale) scholen, supermarkten en sportscholen liggen op een steenworp afstand. De verbinding met het openbaar vervoer is uitstekend, zo ligt het trein- en busstation op loopafstand. Met de trein bereikt u in ca. 20 minuten het centrum van grotere steden zoals Amsterdam of Utrecht. Indeling Entree
in een lichte hal met meterkast en een kast met de cv-opstelling. Twee slaapkamers van verschillend formaat. Badkamer met ligbad, vaste wastafel en aansluiting voor wasmachine en droger. Separaat toilet met fonteintje. Lichte woon-/eetkamer met open keuken voorzien van inbouwapparatuur en een Frans balkon met schuifpui. Vanuit de woonkamer is de hoofdslaapkamer bereikbaar, gelegen aan de voorzijde. Bijzonderheden: - 3-kamer appartement op loopafstand van het NS station; - v.v. eigen parkeerplek; - ligging ideaal in het centrum nabij alle voorzieningen; - woonoppervlak 52 m² NEN gemeten; - bouwjaar 1987; - servicekosten bedragen ca. € 123,- per maand; - energielabel C geldig t/m 11 november 2035; - oplevering kan snel.
Verder lezen

Overdracht

Vraagprijs € 285.000,- k.k.
Vraagprijs per m2 € 5481,-
Aangeboden sinds Tijdperiode niet beschikbaar
Status Beschikbaar
Aanvaarding In overleg

Bouw

Soort bouw Bestaande bouw
Bouwjaar 1987

Oppervlakte en inhoud

Indeling

Energie

Kadastrale grens

Buitenruimte

Parkeergelegenheid

Deze woning bezichtigen

Laat uw gegevens achter en wij nemen contact met u op voor het plannen van een bezichtiging

Google maps

Stand van de zon

Je eerste woning?

Wanneer u uw huis gaat verkopen is het wel zo fijn om met een partij in zee te gaan die uw woning optimaal onder de aandacht van potentiële kopers brengt. Een partij die u adviseert over een reële vraagprijs, die de bezichtigingen begeleidt en voor u de onderhandelingen voert.

Bij ID Makelaars houden we van een directe, recht-door-zee manier van communiceren. Uw woning brengen wij uitgebreid onder de aandacht van potentieel geïnteresseerden.

Te koop

Kruissteeg 6F

Hilversum
52 m2
3
2

Kruissteeg 6F

€ 285.000,- k.k.
Te koop

Van Hoornstraat 28

Hilversum
128 m2
254 m2
5
4

Van Hoornstraat 28

€ 695.000,- k.k.
Te koop

Bergweg 24

Hilversum
1.056 m2
2.991 m2
18
5

Bergweg 24

€ 3.695.000,- k.k.
Te koop

Spoorstraat 18

Hilversum
96 m2
4
3

Spoorstraat 18

€ 439.000,- k.k.
Te koop

Hazelaarlaan 42

Hilversum
139 m2
537 m2
5
4

Hazelaarlaan 42

€ 1.315.000,- k.k.

Plan een bezichtiging
of stel een vraag

Zou u deze woning willen bezichtigingen of heeft u vraag? Laat uw gegevens achter via dit formulier en wij nemen zo snel mogelijk contact met u op.

Neem contact met ons op!